Natalie
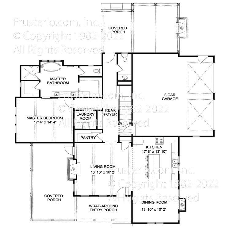
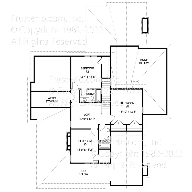
House Plan #: 2624-0420
Sq.ft.: 2618
Bedrooms: 4
Bathrooms: 4.5
Style: Transitional and Modern
Levels: 2
Width: 81' 4"
Depth: 73' 8"
Master: 1st Floor
2nd Bedroom on Main: Yes
Garage: Side
Foundation: Basement
NOTE: The foundation can be changed
1st Floor: 1655
2nd Floor: 963


This plan can be customized
Submit an inquiry below to learn more about customizing our plans to fit your needs.