Marley
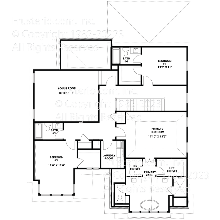
House Plan #: 3512-1222
Sq.ft.: 3274
Bedrooms: 4
Bathrooms: 4.5
Style: Transitional
Levels: 2
Width: 45' 6"
Depth: 49' 6"
Master: 2nd Floor
2nd Bedroom on Main: Yes
Garage: Front
Foundation: Slab
NOTE: The foundation can be changed
1st Floor: 1507
2nd Floor: 1767

This plan can be customized
Submit an inquiry below to learn more about customizing our plans to fit your needs.

